Wohn- und Geschäftshaus mit viel Potenzial!

Video zu dieser Immobilie
Datenblatt
ImmoNr. 3072
Vermarktungsart Kauf
Objektart Haus
Objekttyp Wohn- und Geschäftshaus
PLZ 6890
Ort Lustenau
Straße Holzstraße
Hausnummer 46
Land Österreich
Grundstücksgröße 1.053,00 m²
Anzahl Zimmer 5
Anzahl Badezimmer 1
Anzahl sep. WC 1
Anzahl Terrassen 1
Zusatz Grundstücksgröße Grenzkataster
Befeuerung Öl
Heizungsart Zentralheizung
ImmoNr. 3072 Vermarktungsart Kauf
Objektart Haus Objekttyp Wohn- und Geschäftshaus
PLZ 6890 Ort Lustenau
Straße Holzstraße Hausnummer 46
Land Österreich Grundstücksgröße 1.053,00 m²
Anzahl Zimmer 5 Anzahl Badezimmer 1
Anzahl sep. WC 1 Anzahl Terrassen 1
Zusatz Grundstücksgröße Grenzkataster Befeuerung Öl
Heizungsart Zentralheizung

Hinweis zur Provision: 3,6% inkl. 20% USt.

Details zur Immobilie
Dieses ehemalige Stickerei-Gebäude ist inzwischen ein Wohn- und Geschäftshaus und befindet sich in einer schöner Wohngegend von Lustenau. Es ist ein Traum für alle Handwerker und Renovierungsliebhaber.

Im Erdgeschoss ist eine vermietete Werkstatt, ehemalige Stickerei, untergebracht. Zudem befindet sich im Wohnhausteil eine Vorratskammer, Garage, Heizraum sowie der Öltankraum.

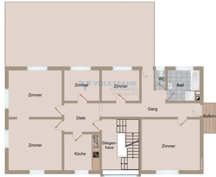
Im Obergeschoss sind gesamt 5 Zimmer sowie eine Wohnküche, ein Bad und ein Gäste-WC untergebracht. Des Weiteren ist ein Dachboden vorhanden.

Laut den vorliegenden Bauplänen sind folgende Geschossflächen vorhanden:
- Erdgeschoss ca. 165 m²
- Obergeschoss ca. 120 m²
- Dachboden ca. 120 m²

Der Energieausweis befindet sich in Arbeit.

Bei dem angegebenen Preis handelt es sich um einen Richtpreis, der in etwa dem möglichen zukünftigen Kaufpreis entsprechen kann.
Da der Preis vom Interessenten mit einem dafür ausgestellten Anbot definiert wird, kann er, abhängig von der jeweiligen Nachfrage, entweder unter, auf oder auch über dem Richtpreis zu liegen kommen. Die Zustimmung erfolgt zeitnah ausschließlich vom Abgeber durch Gegenzeichnung des Anbots.

Wir weisen Sie darauf hin, dass der angeführte Grundriss als Symbolbild gilt und dieser sowie die darin enthaltenen Flächenangaben von den tatsächlichen Gegebenheiten abweichen können.

Die Angaben beziehen sich auf die Auskünfte des Eigentümers.
Dieses Angebot ist freibleibend, Irrtum und Zwischenverkauf bleiben ausdrücklich vorbehalten.

Weiters weisen wir Sie auf Ihr Rücktrittsrecht gem. § 30 a Konsumentenschutzgesetz hin. Den genauen Wortlaut des § 15 Maklergesetzes und des § 30 a Konsumentenschutzgesetzes können Sie dem beiliegenden Merkblatt entnehmen.

Es besteht ein wirtschaftliches Naheverhältnis zur Volksbank Vorarlberg e. Gen.
Des Weiteren weisen wir ausdrücklich darauf hin, dass wir als Doppelmakler tätig sind. Wir glauben, Ihnen mit diesem Angebot ein interessantes Objekt namhaft gemacht zu haben.

Nebenkosten: 3,5% Grunderwerbssteuer, 1,1% Grundbuchseintragung, 3,6% Vermittlungshonorar inkl. 20 % MwSt., Vertragserrichtungskosten
Kaufpreis 787.000,00 €
Provision 3,6% inkl. 20% USt.
Währung
Energieausweis Skala Energieausweis Zeiger
Details zur Immobilie
Dieses ehemalige Stickerei-Gebäude ist inzwischen ein Wohn- und Geschäftshaus und befindet sich in einer schöner Wohngegend von Lustenau. Es ist ein Traum für alle Handwerker und Renovierungsliebhaber.

Im Erdgeschoss ist eine vermietete Werkstatt, ehemalige Stickerei, untergebracht. Zudem befindet sich im Wohnhausteil eine Vorratskammer, Garage, Heizraum sowie der Öltankraum.

Im Obergeschoss sind gesamt 5 Zimmer sowie eine Wohnküche, ein Bad und ein Gäste-WC untergebracht. Des Weiteren ist ein Dachboden vorhanden.

Laut den vorliegenden Bauplänen sind folgende Geschossflächen vorhanden:
- Erdgeschoss ca. 165 m²
- Obergeschoss ca. 120 m²
- Dachboden ca. 120 m²

Der Energieausweis befindet sich in Arbeit.

Bei dem angegebenen Preis handelt es sich um einen Richtpreis, der in etwa dem möglichen zukünftigen Kaufpreis entsprechen kann.
Da der Preis vom Interessenten mit einem dafür ausgestellten Anbot definiert wird, kann er, abhängig von der jeweiligen Nachfrage, entweder unter, auf oder auch über dem Richtpreis zu liegen kommen. Die Zustimmung erfolgt zeitnah ausschließlich vom Abgeber durch Gegenzeichnung des Anbots.

Wir weisen Sie darauf hin, dass der angeführte Grundriss als Symbolbild gilt und dieser sowie die darin enthaltenen Flächenangaben von den tatsächlichen Gegebenheiten abweichen können.

Die Angaben beziehen sich auf die Auskünfte des Eigentümers.
Dieses Angebot ist freibleibend, Irrtum und Zwischenverkauf bleiben ausdrücklich vorbehalten.

Weiters weisen wir Sie auf Ihr Rücktrittsrecht gem. § 30 a Konsumentenschutzgesetz hin. Den genauen Wortlaut des § 15 Maklergesetzes und des § 30 a Konsumentenschutzgesetzes können Sie dem beiliegenden Merkblatt entnehmen.

Es besteht ein wirtschaftliches Naheverhältnis zur Volksbank Vorarlberg e. Gen.
Des Weiteren weisen wir ausdrücklich darauf hin, dass wir als Doppelmakler tätig sind. Wir glauben, Ihnen mit diesem Angebot ein interessantes Objekt namhaft gemacht zu haben.

Nebenkosten: 3,5% Grunderwerbssteuer, 1,1% Grundbuchseintragung, 3,6% Vermittlungshonorar inkl. 20 % MwSt., Vertragserrichtungskosten
Kaufpreis 787.000,00 €
Provision 3,6% inkl. 20% USt.
Währung
Beschreibung der Immobilie Dieses ehemalige Stickerei-Gebäude ist inzwischen ein Wohn- und Geschäftshaus und befindet sich in einer schöner Wohngegend von Lustenau. Es ist ein Traum für alle Handwerker und Renovierungsliebhaber.

Im Erdgeschoss ist eine vermietete Werkstatt, ehemalige Stickerei, untergebracht. Zudem befindet sich im Wohnhausteil eine Vorratskammer, Garage, Heizraum sowie der Öltankraum.

Im Obergeschoss sind gesamt 5 Zimmer sowie eine Wohnküche, ein Bad und ein Gäste-WC untergebracht. Des Weiteren ist ein Dachboden vorhanden.

Laut den vorliegenden Bauplänen sind folgende Geschossflächen vorhanden:
- Erdgeschoss ca. 165 m²
- Obergeschoss ca. 120 m²
- Dachboden ca. 120 m²

Der Energieausweis befindet sich in Arbeit.

Bei dem angegebenen Preis handelt es sich um einen Richtpreis, der in etwa dem möglichen zukünftigen Kaufpreis entsprechen kann.
Da der Preis vom Interessenten mit einem dafür ausgestellten Anbot definiert wird, kann er, abhängig von der jeweiligen Nachfrage, entweder unter, auf oder auch über dem Richtpreis zu liegen kommen. Die Zustimmung erfolgt zeitnah ausschließlich vom Abgeber durch Gegenzeichnung des Anbots.

Wir weisen Sie darauf hin, dass der angeführte Grundriss als Symbolbild gilt und dieser sowie die darin enthaltenen Flächenangaben von den tatsächlichen Gegebenheiten abweichen können.

Die Angaben beziehen sich auf die Auskünfte des Eigentümers.
Dieses Angebot ist freibleibend, Irrtum und Zwischenverkauf bleiben ausdrücklich vorbehalten.

Weiters weisen wir Sie auf Ihr Rücktrittsrecht gem. § 30 a Konsumentenschutzgesetz hin. Den genauen Wortlaut des § 15 Maklergesetzes und des § 30 a Konsumentenschutzgesetzes können Sie dem beiliegenden Merkblatt entnehmen.

Es besteht ein wirtschaftliches Naheverhältnis zur Volksbank Vorarlberg e. Gen.
Des Weiteren weisen wir ausdrücklich darauf hin, dass wir als Doppelmakler tätig sind. Wir glauben, Ihnen mit diesem Angebot ein interessantes Objekt namhaft gemacht zu haben.

Nebenkosten: 3,5% Grunderwerbssteuer, 1,1% Grundbuchseintragung, 3,6% Vermittlungshonorar inkl. 20 % MwSt., Vertragserrichtungskosten
Ansprechpartner
  • Martin Zgubic

Herr Martin Zgubic
Lustenauer Straße 49
6850 Dornbirn

+43 (0)50 882 3937 martin.zgubic@volksbank-immo.at

Sofortanfrage
Ich bin mit der Datenschutzerklärung einverstanden.

Mit * gekennzeichnete Felder sind Pflichtangaben

Lage der Immobilie
Volksbank Vorarlberg Immobilien GmbH & Co OG

Rufen Sie uns an. Wir freuen uns auf ein persönliches Gespräch.

050 882 3932
Kontakt Kontakt